Overview
- Atualizado em:
- 04/07/2022
- 1 WCs
- 176.00 m2
Descrição
Loja no centro de Matosinhos, Porto
Descritivo curto
loja com licença para restauração;
localização numa das principais avenidas de Matosinhos;
área total superior a 170m²;
grande visibilidade.
Descritivo completo
Se procura:
- loja com licença para restauração;
- localização numa das principais avenidas de Matosinhos;
- área total superior 170m2;
- grande visibilidade e montras de grande dimensão…
…aqui encontra!
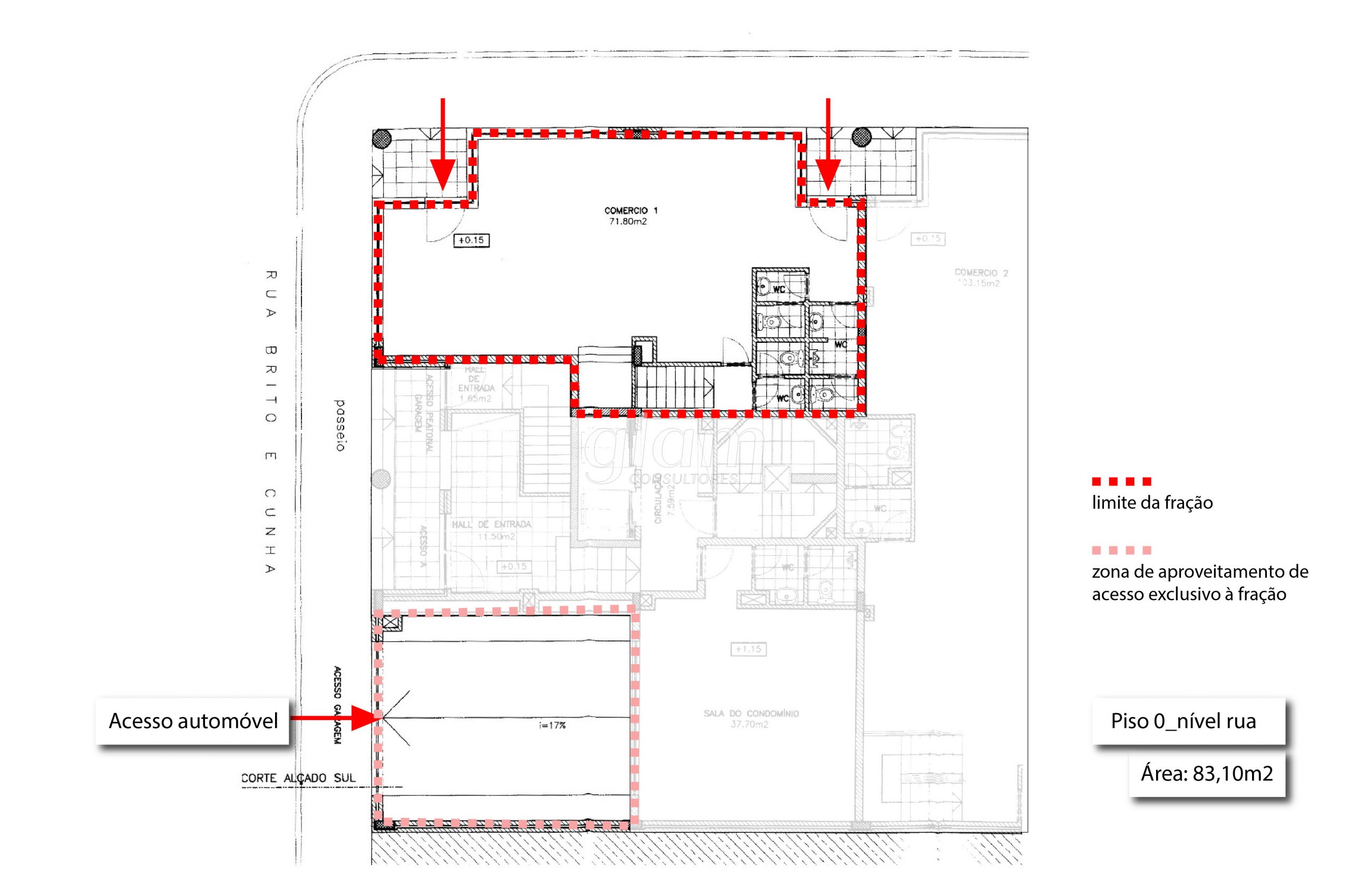
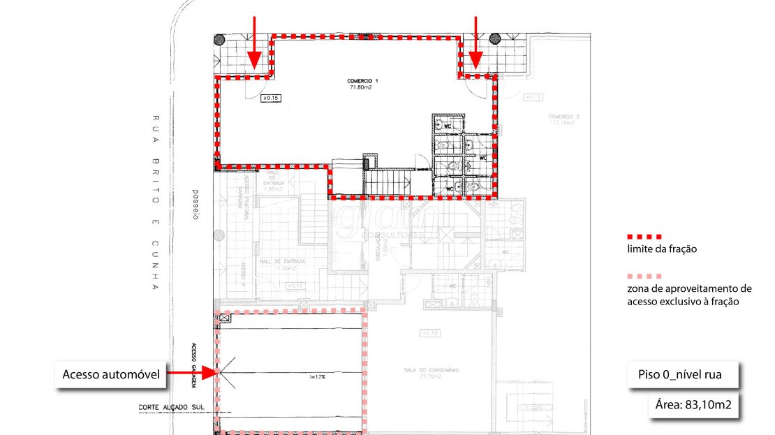
Localizada no gaveto norte/poente de um prédio, com fachadas recentemente renovadas, entre a Av. Menéres e a Rua Brito e Cunha, encontramos esta
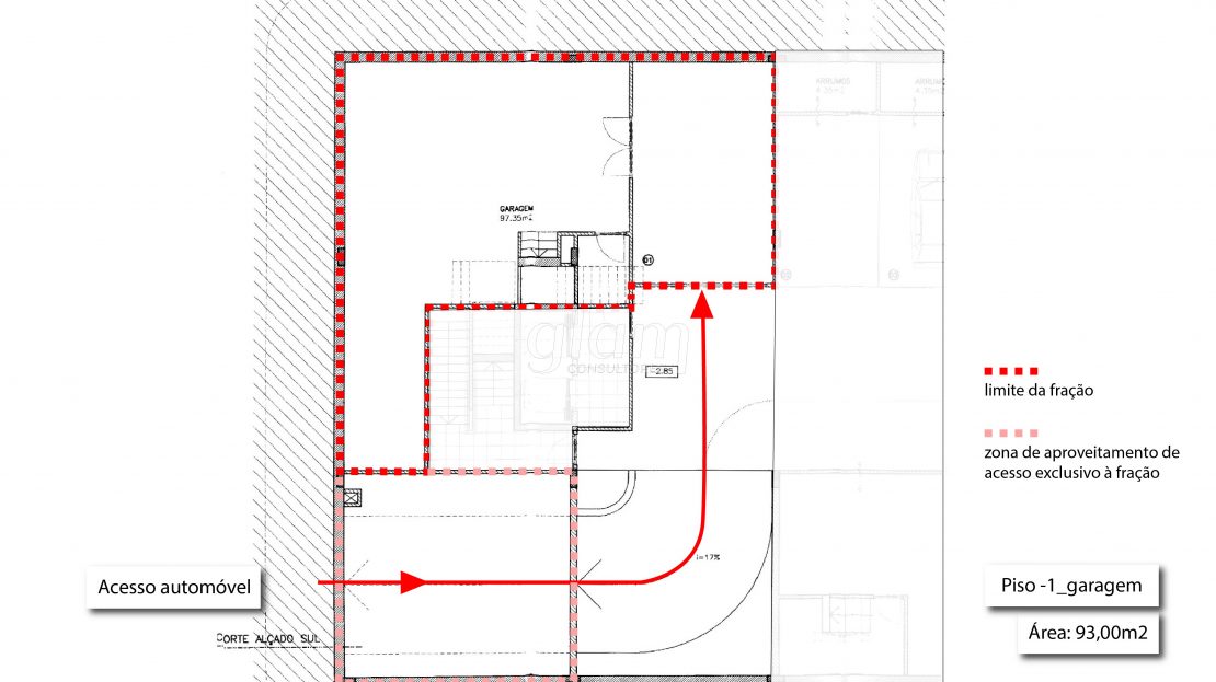
loja com 2 pontos de acesso pedonal (um no próprio gaveto e outro através da Av.Menéres). Dispõe ainda de um acesso automóvel à garagem que permite
cargas e descargas diretamente no piso inferior.
A área total é distribuída por 2 pisos, estando atualmente a área no r/c dedicada ao atendimento ao público e no piso -1 à área de serviço. Estes 2 pisos
estão ligados através de escadas e auxiliados por um monta cargas de pequenas dimensões.
A loja está equipada com ar condicionado, teto falso com focos embutidos e sistema contra incêndios.
O valor de venda é exclusivamente do imóvel, estando o equipamento/mobiliário disponível para venda em separado.
A LOJA AGORA:
Aqui se instala atualmente um restaurante take-away.
A cidade de Matosinhos é reconhecida pela sigla BFW – Best Fish of the World! Indiscutivelmente esta cidade é uma das principais “mesas” do distrito do
Porto. A concentração de restaurantes, em redor da doca pesca, só poderia determinar o consumo, quase exclusivo, de peixe nesta zona. Mas todos os
dias peixe é demais!
Para responder a quem mora em Matosinhos, adora peixe, mas também gosta de variar, há quase 20 anos nasceu este restaurante/take away“ de nome
Excellence”.
No coração da zona residencial, este restaurante acode aos mais variados apetites e aos mais aflitos de tempo. Com tantos anos de dedicação, chegou
agora a hora de entregar as “rédeas” a quem queira prosseguir com este projecto de vida.
Chegou agora o momento dos atuais proprietários gozarem agora o merecido descanso.
A LOJA NO FUTURO:
Dada a generosidade das dimensões das suas montras e a franca visibilidade para uma das principais avenidas de Matosinhos, Avenida Menéres, esta loja é
capaz de responder à maioria dos negócios/atividades, sendo facilmente convertida para qualquer outro ramo.
As coordenadas asseguram grande parte do sucesso do futuro negócio que aqui se instalar.
Descrição adicional:
Esta casa é reconhecida pela sua comida caseira de conforto, feita com o tempo de quem quer servir bem e de quem honradamente vende filetes de
pescada e não de peixe gato!
Na montra lemos “Adoramos fazer comida para quem adora comer!”
A clientela mais leal reside na zona e resulta da experiência que um dia ter provado, gostado e voltado!
Orgulhosamente compactuam com quem aqui se abastece para oferecer refeições em casa tipo “fui eu que fiz”!
Arroz de marisco, polvo à lagareiro, grelhados, lombo de vitela e bacalhau espiritual, são dos pratos mais procurados. Há dias em que a fila chega a
contornar a esquina deste quarteirão.
Na montra também se lê…“Cada um é para o que nasce! Nós nascemos em 2002 vocacionados para take-away.” Os proprietários deste estabelecimento já
servem há quase 20 anos e este é o principal motivo de venda…chegou a hora “encostar as botas” e irem passear e almoçar fora.
Para quem queira dar continuidade a este negócio ou montar outro…aqui tem muito “pano para mangas”.
Venha conhecer e, se quiser, “provar esta angariação”.
Áreas na caderneta predial:
Área bruta privativa: 83,1m²
Área bruta dependente: 93m²
Acessos:
- a 2km de distância do acesso à A4 e à A28 (IC1);
Transportes:
- a passos de distância da paragem de autocarro;
- a 190m de distância Estação de Metro “Matosinhos Sul”;
Serviços:
- a 450m de distância da Associação Humanitária de Bombeiros Voluntários de Leixões;
- a 500m de distância da Estação dos correios CTT;
- a 800m de distância da Câmara Municipal de Matosinhos;
- a 1km de distância da Polícia Municipal de Matosinhos;
Pontos de interesse:
- a passos de distância da Casa de Arquitetura;
- a 600m de distância do Terminal de Cruzeiros do Porto de Leixões;
- a 1,4km de distância do Castelo do Queijo;
- a 1,6km de distância do Pavilhão da Água;
- a 2km de distância do Parque da Cidade do Porto;
- a 4km de distância do Museu da Quinta de Santiago;
- a 3km de distância da Parque Municipal da Quinta da Conceição.
VENHA viVER de perto!























































