Overview
- Atualizado em:
- 27/04/2021
- 645.00 m2
Descrição
Descritivo completo
Conjunto de 5 prédios em propriedade total sem andares nem divisões susceptíveis de utilização independente, no centro do Porto, mais precisamente na Travessa da Póvoa, entre a Rua Santos Pousada e a Avenida Fernão Magalhães.
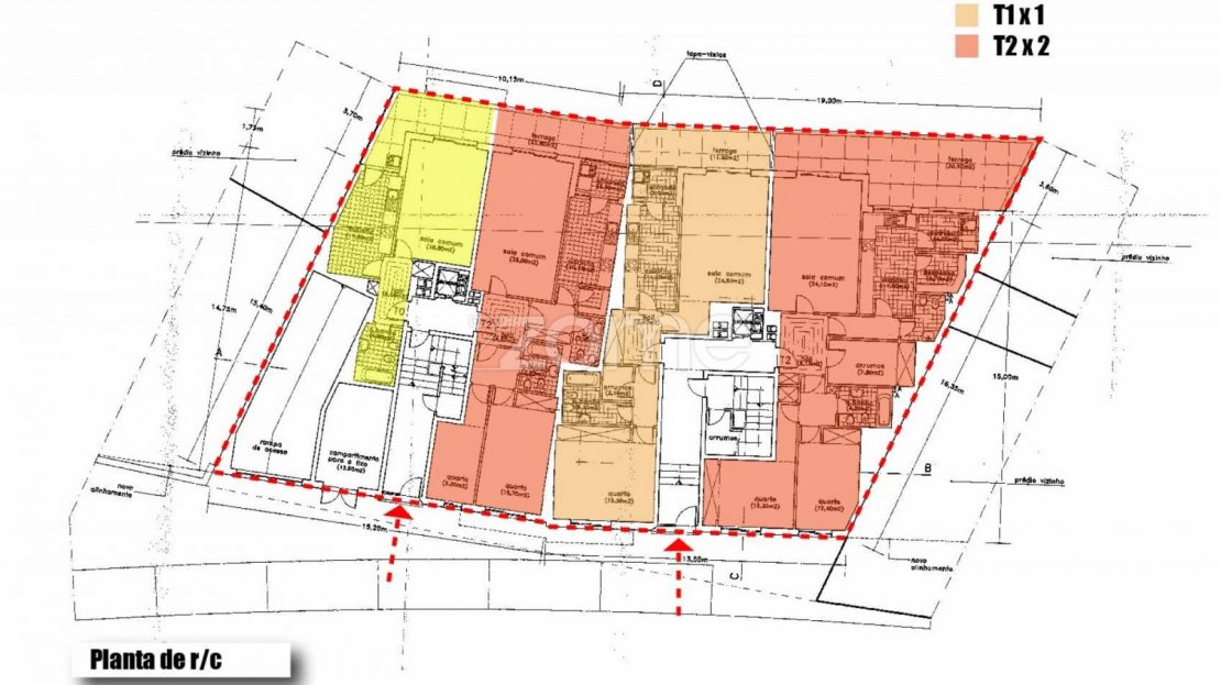
Com uma área de terreno total de 840m2 e com uma frente orientada a sul, para a Travessa da Póvoa, este terreno teve projecto aprovado para a construção de um edifício de duas frentes composto por:
– r/c + 3 pisos (T0x1, T1x1 e T2x14);
– cave -3, -2 e -1 para parqueamento e logradouro.
Perfazendo um total de 1400m2 de área habitável.
O projecto prevê que os apartamentos se distribuam da seguinte forma:
PISO R/C (elevado):
– T0 = 1 (com terraço)
– T1 = 1 (com terraço) – T2 = 2 (com terraço)
PISO 1:
– T2 =4 (com varanda)
PISO 2:
– T2 =4 (com varanda)
PISO 3:
– T2 =4 (com varanda)
TOTAL DE APARTAMENTOS: 16
O terreno encontra-se dentro da ARU de SANTOS POUSADA (área de reabilitação urbana de santos pousada), usufruindo dos benefícios fiscais associados aos impostos municipais.
Importante ainda referir que está previsto, no PDM da Câmara do Porto, a criação de uma nova avenida em frente a este terreno que ligará a Avenida Fernão de Magalhães à Rua de Santos Pousada.
*****notícia de Agosto de 2018):*****
!Lançado primeiro concurso para seleção de projetistas para o programa Rua Direita!
A Travessa da Póvoa, travessa onde se encontra este terreno, faz parte integrante do programa RUA DIREITA-programa de reabilitação da rede fina de espaços públicos.
O Programa é destinado à qualificação de 88 arruamentos, organizados em 6 grupos, estando este terreno inserido no Grupo 5 (G5).
Este é um terreno que seguramente vai valorizar com esta intervenção! Não perca esta oportunidade!”
**************************************************
Venha viVER de perto!














































































































